松山市西長戸建売②

2,898万円

愛媛県松山市西長戸町

予讃線「三津浜」駅徒歩27分

伊予鉄道高浜線「衣山」駅徒歩24分

伊予鉄道環状線(JR松山駅経由)「本町六丁目」駅徒歩36分

価格
2,898万円
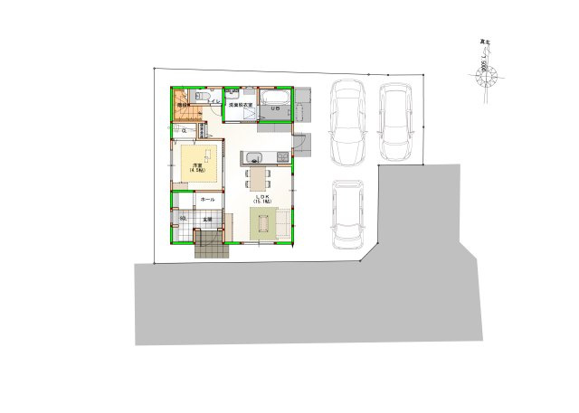
間取り
4LDK
土地面積
128.67㎡
所在地
愛媛県松山市西長戸町
交通

予讃線三津浜」駅 徒歩27分

伊予鉄道高浜線衣山」駅 徒歩24分

伊予鉄道環状線(JR松山駅経由)本町六丁目」駅 徒歩36分

建物面積
102.61㎡
築年月
2025年10月(予定)

物件の特徴

  • TVモニタ付きインターホン

  • 浴室乾燥機

セールスポイント

駐車スペースは結構困る事が多いですがここは駐車3台可です!来訪者の顔が確認できる、安心のTVインターホン付きです!IH調理器を使用したキッチンです!多くの方からこだわり条件でいただく新築戸建ての物件です!快適なお住まいを見つけて、新しい生活をスタートさせましょう!これから先のあなたの生活を豊かにする不動産に出会えます!ぜひご検討ください(^o^)

ポイント

築2年以内 2駅利用可 IHクッキングヒーター 三面鏡付洗面化粧台 南側道路面す

担当者のコメント

武井 沙季

松山市エリアでの住まいなら、住み心地も快適な「松山市西長戸②」はいかがでしょうか♪人気のIHキッチンです♪建物面積102.61平米で広々している物件です♪あなたのライフスタイルに合った不動産を探しませんか♪快適な暮らしが実現できるお住まいがきっと見つかります♪ぜひ当社をご利用くださいませ(#^^#)

基本情報

販売戸数
-
総戸数
-
間取り / 詳細
4LDK
向き
-
建物面積(坪数)
102.61㎡(31.03坪)
土地面積(坪数)
128.67㎡(38.92坪)
建ぺい率 /
容積率
50%/80%
築年月
2025年10月(予定)
駐車場 /
月額料金
有(3台) -
土地権利
所有権
土地
(敷金 / 保証金)
- / -
建物構造
木造 / 2階建
傾斜地部分面積
-
路地状敷地
-
私道負担面積
-
セットバック
-
高圧線下面積
-
施工会社
-
用途地域
第一種低層住居専用
地目 / 地勢
宅地 / -
接道状況
一方(南 私道 4.3m 間口 18.5m)
国土法届出要否
不要
都市計画
市街化区域
総区画数 /
販売区画数
-/-
現況
未完成
その他
法令上の制限
景観法/日影制限有/隅切り有
取引態様
仲介
引渡し
相談
その他条件
 太陽光発電システム7.92kW込みでの販売も可能、その際の価格は+100万円になります。 ※お客様の屋根を当社にお貸しいただき太陽光発電システムを設置する「屋根貸しシステム」をご利用頂く事が価格の条件です。 ※太陽光発電システムは発電開始して10年経過後に無償で譲渡します。 ※太陽光発電付きでの購入も可能で、その場合は太陽光売電収入はお客様が得る事になります。
取引条件の
有効期限
2025年12月01日

設備条件

設備条件
  • 公営水道 / 浄化槽排水 / 24時間換気システム / 駐車3台可 / IHクッキングヒーター / 浴室乾燥機 / TVモニタ付インターホン
設備(その他)
    対面式キッチン・人造大理石カウンタートップ・IHコンロ・食器洗い乾燥機・オールインワン浄水栓・水なし両面焼きグリル・キッチン手元コンセント 3面鏡洗面化粧台・1坪サイズシステムバス・温水洗浄便座トイレ・TVモニター付インターホン・インナーバルコニー・24H換気・外部コンセント・外部水栓・浴室換気乾燥暖房機・洗面エコハンドル水栓・UBエコアクアシャワー・UBマグネットシェルフ・断熱浴槽・ランドリー棚

その他

物件番号
95976547
管理コード
-
建築確認番号
第2025建確0380号
情報更新日
2025年11月17日
次回更新予定日
2025年12月01日
取扱会社
  • 株式会社デンカシンキ 大街道不動産
  • 愛媛県松山市大街道2丁目1-3 OKD213ビル 2F
  • TEL:0120-66-7108
  • 愛媛県知事 (1) 第5708号
    電気・建築一式総合建設業/小売電気事業者
備考
こだわりポイント満載の松山市西長戸②◎TVインターホン付きなので、女性の方も安心です◎住環境が良好だと、自然と気持ちにゆとりが生まれませんか◎住まいには人の心までも左右する大きな力があるのです◎そんな重要なお住まい探しだからこそ、当社にお任せ頂きたいのです◎ぜひご検討ください(^o^)

周辺施設

  • 久枝小学校の画像

    小学校

    久枝小学校

    770m(10分)

  • フジの画像

    スーパー

    フジ

    860m(11分)

  • 鴨川中学校の画像

    中学校

    鴨川中学校

    1161m(15分)

  • くすりのレディの画像

    ドラッグストア

    くすりのレディ

    1274m(16分)

支払いシミュレーション

月々の支払額
9.6
購入希望物件価格
万円
頭金
万円
金利
%
返済額(ボーナス1回分)
万円
返済期間

※ボーナスは自動で年2回分で計算されます。

近隣の物件

  1. 星岡建売④

    松山市星岡3丁目

    4LDK (103.23㎡)

    2,898万円

  2. 松山市小栗1丁目

    松山市小栗1丁目

    3LDK (78.50㎡)

    2,398万円

  3. 松山市石手4丁目

    松山市石手4丁目

    5DK (94.61㎡)

    3,980万円

  4. 星岡建売③

    松山市星岡3丁目

    4LDK (103.02㎡)

    3,098万円

松山市西長戸建売②

松山市西長戸建売②

2,898万円

-

4LDK(102.61㎡)

お気軽にお問い合わせください

無料お問い合わせ

株式会社デンカシンキ 大街道不動産

0120-66-7108

9:30~18:30

(休:不定休)