清住(4LDK)

2,898万円

愛媛県松山市清住2丁目

伊予鉄道高浜線「山西」駅徒歩15分

伊予鉄道高浜線「三津」駅徒歩22分

伊予鉄道高浜線「西衣山」駅徒歩25分

価格
2,898万円
間取り/建物面積
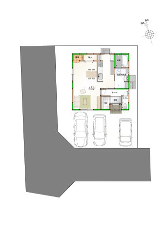
4LDK/104.88㎡
所在地
愛媛県松山市清住2丁目
築年
2026年4月(予定)
駐車
交通

伊予鉄道高浜線山西」駅 徒歩15分

伊予鉄道高浜線三津」駅 徒歩22分

伊予鉄道高浜線西衣山」駅 徒歩25分

清住(4LDK)の基本情報

物件名
清住(4LDK)
価格
2,898万円
建物面積
104.88㎡
土地面積
42坪(138.86㎡)
築年月
2026年4月(予定)
総戸数
-
所在地
愛媛県松山市清住2丁目
交通

伊予鉄道高浜線山西」駅 徒歩15分

伊予鉄道高浜線三津」駅 徒歩22分

伊予鉄道高浜線西衣山」駅 徒歩25分

清住(4LDK)の詳細情報

設備条件
  • 駐車3台可
  • 耐震構造
設備(その他)
    -
駐車場/月額
有/-
土地権利
所有権
国土法届出
不要
用途地域
第一種住居
取引態様
仲介
引渡し
相談
備考
ぜひ一度見ていただきたい、「松山市清住4LDK」です。コチラの物件は、新築の戸建て物件で設備も充実しています。築2年以内の築浅物件です。駅まで徒歩15分と少し離れている物件です。松山市にある不動産を探すのであれば、当社スタッフまでご連絡下さい。お問合せはinfo-okd@sinki.jpまでよろしくお願いします。

清住(4LDK)のコメント(おすすめポイント)

こだわりポイント満載の松山市清住4LDK。新築の戸建て物件です。駅まで徒歩15分の物件です。築2年以内の築浅物件です。松山市にある伊予鉄道高浜線山西周辺の一戸建て探しをする方は、デンカシンキ      大街道不動産がお勧めする一戸建て情報をご覧下さい。ご連絡は0120-66-7108にお願いします。

清住(4LDK)で募集中の物件

  1. 31.72坪 (104.88㎡)

    2,898万円(91.36万円/坪)

周辺施設

  • マルナカの画像

    スーパー

    マルナカ

    350m(5分)

  • コーナンPROの画像

    ホームセンター

    コーナンPRO

    450m(6分)

近隣の物件

  1. 松山市畑寺4丁目

    4LDK (104.33㎡)

    4,1768,610

  2. 松山市古川南1丁目

    7LDK (143.49㎡)

    4,490万円

  3. 松山市余戸中3丁目

    2SLDK (92.74㎡)

    4,0428,000

  4. 松山市室町

    3LDK (87.35㎡)

    4,499万円

よく見られている物件

  1. 松山市土居田町

    3SLDK (86.73㎡)

    1,690万円

  2. 松山市石手4丁目

    5DK (94.61㎡)

    3,980万円

  3. 松山市居相1丁目

    5SLDK (266.39㎡)

    7,970万円

  4. 松山市山西町

    4LDK+S(納戸) (129.80㎡)

    2,900万円

清住(4LDK)

お気軽にお問い合わせください

無料お問い合わせ

株式会社デンカシンキ     大街道不動産

0120-66-7108

9:30~18:30

(休:不定休)