清住(4LDK)

2,998万円

愛媛県松山市清住2丁目

伊予鉄道高浜線「山西」駅徒歩15分

伊予鉄道高浜線「三津」駅徒歩22分

伊予鉄道高浜線「西衣山」駅徒歩25分

価格
2,998万円
間取り
4LDK
土地面積
138.86㎡
所在地
愛媛県松山市清住2丁目
交通

伊予鉄道高浜線山西」駅 徒歩15分

伊予鉄道高浜線三津」駅 徒歩22分

伊予鉄道高浜線西衣山」駅 徒歩25分

建物面積
104.88㎡
築年月
2026年4月(予定)

物件の特徴

  • カウンターキッチン

  • 浴室乾燥機

セールスポイント

南向き角地で18畳LDK。駐車3台可&マルナカ徒歩5分でゆとりが持てそうです。食洗機や浴室乾燥機完備。防災アイテムの収納にも便利な玄関収納付き。コーナンPROが徒歩6分の場所にあり、日用品や住まいのアイテムが必要な時もすぐに揃えられる安心感があります。2026年4月完成予定の新しい住まいで、最新の設備に囲まれながら、家族の新しい歩みを心地よく始められそうです。

ポイント

3台以上の駐車が可能なため 一台を駐輪スペースや趣味の場所として使うなど 暮らしの幅が広がりそうです。

担当者のコメント

中西 航太

多くの方に好評の、4LDKの物件情報はこちらです。リビングダイニングが18帖以上となっており、友人が集まる場としても充分です。IHクッキングヒーター付きの物件です。システムキッチン付きの物件です。住みやすい環境が整った松山市で一戸建てを購入するのであれば、豊富な不動産情報を扱う当社のスタッフまでお問い合わせください。

基本情報

販売戸数
-
総戸数
-
間取り / 詳細
4LDK
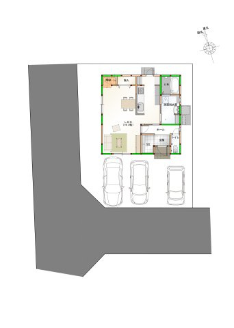
LDK 19.2帖/洋室 8.0帖/洋室 5.1帖/洋室 5.1帖/洋室 4.5帖
向き
-
建物面積(坪数)
104.88㎡(31.72坪)
土地面積(坪数)
138.86㎡(42.00坪)
建ぺい率 /
容積率
60%/200%
築年月
2026年4月(予定)
駐車場 /
月額料金
有 -
土地権利
所有権
土地
(敷金 / 保証金)
- / -
建物構造
木造 / 2階建
傾斜地部分面積
-
路地状敷地
-
私道負担面積
-
セットバック
高圧線下面積
-
施工会社
-
用途地域
第一種住居
地目 / 地勢
宅地 / -
接道状況
角地(南 公道 4.3m 間口 8.1m)(西 公道 4.4m 間口 14.3m)
国土法届出要否
不要
都市計画
市街化区域
総区画数 /
販売区画数
-/-
現況
未完成
その他
法令上の制限
-
取引態様
仲介
引渡し
相談
取引条件の
有効期限
2026年02月23日

設備条件

設備条件
  • 公共下水 / 駐車3台可 / 耐震構造 / IHクッキングヒーター / コンロ2口以上 / 食器洗い乾燥機 / システムキッチン / カウンターキッチン / コンロ3口 / 浴室乾燥機 / 温水洗浄便座 / トイレ2ヶ所 / 浴室1坪以上 / 床下収納
設備(その他)
    -

その他

物件番号
100530754
管理コード
-
建築確認番号
第2025建確-1842号
情報更新日
2026年02月09日
次回更新予定日
2026年02月23日
取扱会社
  • 株式会社デンカシンキ     大街道不動産
  • 愛媛県松山市大街道2丁目1-3 OKD213ビル 2F
  • TEL:0120-66-7108
  • 愛媛県知事 (1) 第5708号
    電気・建築一式総合建設業/小売電気事業者
備考
駅まで歩いて15分ほどの物件です。3口コンロが付いているので、3つの料理を同時に進められて時短につながります。今回紹介するのは、建物面積が104.88平米。浴室乾燥機付きの物件であれば、雨の日で濡れた上着や傘もすぐに乾燥できます。一戸建ての購入は失敗できません。松山市や伊予鉄道高浜線山西付近で住まい探しをするなら、豊富な知識を有する当社スタッフまでご連絡ください。

周辺施設

  • マルナカの画像

    スーパー

    マルナカ

    350m(5分)

  • コーナンPROの画像

    ホームセンター

    コーナンPRO

    450m(6分)

支払いシミュレーション

月々の支払額
9.6
購入希望物件価格
万円
頭金
万円
金利
%
返済額(ボーナス1回分)
万円
返済期間

※ボーナスは自動で年2回分で計算されます。

近隣の物件

  1. 南梅本 新築建売住宅

    松山市南梅本町

    3LDK (82.80㎡)

    2,850万円

  2. LAVIE土居田 2502B

    松山市土居田町

    4SLDK (107.64㎡)

    3,250万円

  3. LAVIE保免上2501A

    松山市保免上1丁目

    4SLDK (102.68㎡)

    3,350万円

  4. 松山市空港通二丁目

    松山市空港通2丁目

    3LDK (98.54㎡)

    2,950万円

清住(4LDK)

清住(4LDK)

2,998万円

-

4LDK(104.88㎡)

お気軽にお問い合わせください

無料お問い合わせ

株式会社デンカシンキ     大街道不動産

0120-66-7108

9:30~18:30

(休:不定休)