松山市谷町 土地

1,150万円

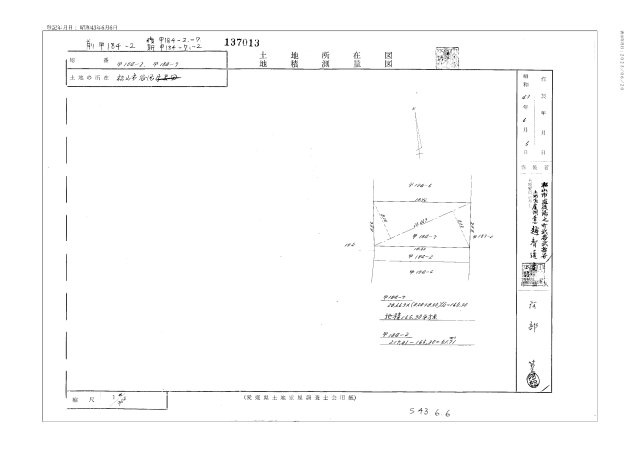
愛媛県松山市谷町184-7

予讃線「伊予和気」駅徒歩32分

価格
1,150万円
坪単価
23万円(50.00坪)
所在地
愛媛県松山市谷町184-7
交通

予讃線伊予和気」駅 徒歩32分

土地面積(坪数)
165.30㎡(50.00坪)
建ぺい率 / 容積率
60% / 200%

セールスポイント

50坪のゆとりある広さなら、憧れの平屋にウッドデッキを繋げて、家族で星空を眺める時間も増えそう。
建築条件なしの土地だから、自分たちのこだわりを形にしてくれる会社と一緒に、後悔のない家づくりができる。
165平米超の広々とした地形で、お庭でのガーデニングや夏場のプール遊びも周囲を気にせず楽しめそう。

ポイント

現況渡し 土地50坪以上 1150万円 自転車置き場 物置あり 建築条件なし 潮見小学校まで徒歩7分 スーパー日東やセブンスター徒歩圏内 整形地 閑静な住宅街

担当者のコメント

中西 航太

松山市エリアでの住まいなら、住み心地も快適な「松山市谷町 土地」はいかがでしょうか。土地面積は165.3㎡(公簿)あります。コチラは売地の情報となっています。土地購入をお考えの方は是非。住宅用地なので住みやすい環境が整っており、戸建てをお考えの方におすすめです。土地探しのお問い合わせなら、0120-66-7108にご連絡下さい。松山市の予讃線伊予和気周辺の土地情報を豊富に取り扱っております。

基本情報

販売区画数
-
総区画数
-
土地面積(坪数)
165.30㎡(50.00坪)
坪単価
23万円
私道負担面積
割合
-
セットバック
要 0.26㎡
建ぺい率 /
容積率
60% / 200%
高圧線下面積
-
傾斜地部分面積
-
路地状敷地
-
地目
宅地
地勢
-
造成工事
完了予定
-
土地権利
所有権
建築条件
都市計画
市街化区域
用途地域
第一種住居
接道状況
一方(東 私道 3.9m 間口 8.8m)
国土法届出要否
不要
最適用途
住宅用地
その他
法令上の制限
狭あい道路
取引態様
専任媒介
現況
古家有
引渡条件
現況渡
引渡時期
相談
開発許可番号
-
取引条件の
有効期限
2026年02月23日

設備条件

設備条件
設備(その他)
    -

その他

物件番号
100913332
管理コード
-
情報更新日
2026年02月09日
次回更新予定日
2026年02月23日
取扱会社
  • 株式会社デンカシンキ     大街道不動産
  • 愛媛県松山市大街道2丁目1-3 OKD213ビル 2F
  • TEL:0120-66-7108
  • 愛媛県知事 (1) 第5708号
    電気・建築一式総合建設業/小売電気事業者
備考
【現況渡し★土地50坪以上】
・1150万円という予算設定で建物へのこだわりをさらに追求できる
・50坪の広さを活かして自転車置き場や物置もゆとりを持って置ける
・建築会社を自由に選べるからこそ納得のいくまで相談を重ねられる
・東側からの陽光がリビングを明るく照らす設計を思う存分楽しめる

周辺施設

  • 鴨川郵便局の画像

    郵便局

    鴨川郵便局

    387m(5分)

  • 潮見小学校の画像

    小学校

    潮見小学校

    544m(7分)

  • 鴨川中学校の画像

    中学校

    鴨川中学校

    862m(11分)

支払いシミュレーション

月々の支払額
9.6
購入希望物件価格
万円
頭金
万円
金利
%
返済額(ボーナス1回分)
万円
返済期間

※ボーナスは自動で年2回分で計算されます。

近隣の物件

  1. 千舟町2丁目 土地

    松山市千舟町2丁目

    - (116.34㎡)

    3,170万円

  2. 山西町 土地

    松山市山西町

    - (99.16㎡)

    500万円

  3. 紅葉町 土地

    松山市紅葉町

    - (390.60㎡)

    5,420万円

  4. 上市1丁目

    松山市上市1丁目

    - (356.77㎡)

    3,900万円

松山市谷町 土地

松山市谷町 土地

1,150万円

-(165.30㎡)

お気軽にお問い合わせください

無料お問い合わせ

株式会社デンカシンキ     大街道不動産

0120-66-7108

9:30~18:30

(休:不定休)